Mieszkanie na sprzedaż Kutno, Bielawki

1 pokoj
42.80 m²
2 920,56 zł/m2
parter
PFT-MS-4397
oblicz.rate.kredytu

125 000 zł

Mieszkanie na sprzedaż
Nowa oferta

szczegoly.oferty

Symbol oferty PFT-MS-4397
Powierzchnia 42,80 m²
Powierzchnia użytkowa [m2] 42,80 m²
Liczba pokoi 1
Rodzaj budynku szeregowiec
Technologia budowlana cegła
Standard
Piętro parter
Okna drewniane
Zagosp. działki niezagospodarowana
Stan budynku do remontu
Rok budowy 1923
Woda tak
Dojazd asfalt
Usytuowanie dwustronne
Agata Sucińska

Agata Sucińska

Agent Nieruchomości

napisz.wiadomosc 12 ofert

opis.nieruchomosci

Nietypowa nieruchomość czyli połączenie mieszkania i domu w jednym. Jest to mieszkanie w zabudowie segmentowej  z działką o powierzchni 970m2 zlokalizowana na obrzeżach miasta. W sąsiedztwie są nowe domy jednorodzinne. Jest również przystanek autobusowy i sklep.

Nieruchomość znajduje się w budynku wybudowanym w 1923roku z cegły czerwonej. Znajduje się ona na przedmieściach Kutna - we wsi Bielawki, 5 km od centrum Kutna, 8 km do wjazdu na A1. 

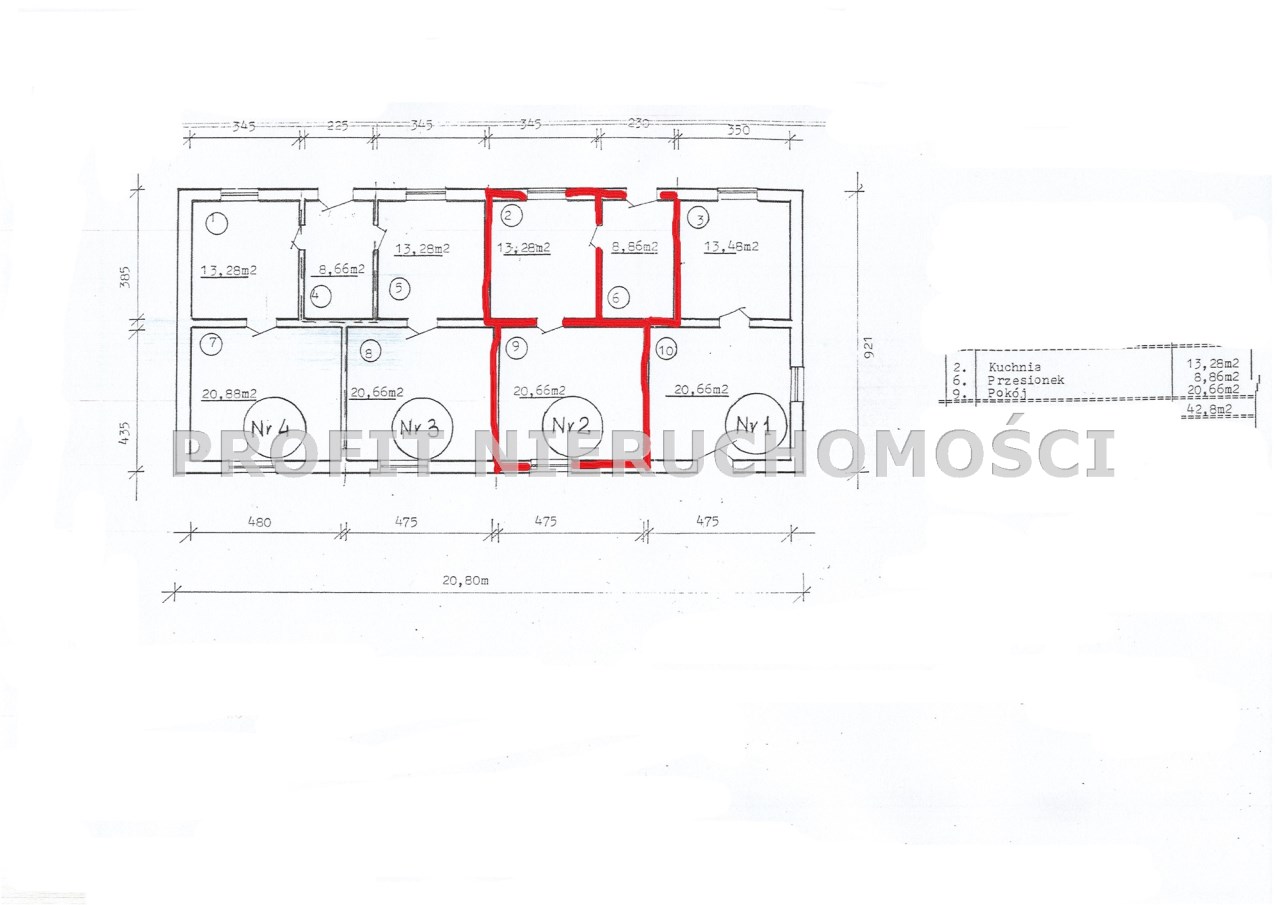
????Mieszkanie posiada ogromny potencjał aranżacyjny. Na powierzchni 43m2 można utworzyć pokój dzienny z aneksem kuchennym, sypialnię, przedpokój i łazienkę z toaletą. Nad całością mieszkania jest strych. 

????Obecnie jest korytarz 8,86m2, pokój 20,66m2 i kuchnia 13,28m2. Z korytarza mamy wejście na poddasze - obecnie nieużytkowe.
????Media: w lokalu jest elektryczność i woda, kanalizacja miejska w działce (zgoda na przyłącze jest wydana).
????Stan prawny: uregulowany. Jest założona księga wieczysta.
????Dojazd: ulica o nawierzchni asfaltowej


Drogi Kliencie  -za usługę pośrednictwa pobieramy wynagrodzenie.
Jeżeli zdecydujesz się na zakup nieruchomości w naszym biurze to min pomożemy w uzyskaniu kredytu na zakup wybranej przez Ciebie nieruchomości i zorganizujemy obsługę notarialną.
 
Uwaga! Dane w ofercie mogą odbiegać od stanu faktycznego, mają jedynie charakter informacyjny, oparte są na informacjach uzyskanych od klientów zgłaszających. Oferta nie stanowi oferty w rozumieniu kodeksu cywilnego. Oferta może być w danym momencie nieaktualna. Prosimy o kontakt telefoniczny lub e-mailowy. Więcej ofert na naszej stronie internetowej

kalkulatory

kalkulator.kredytowy

wysokosc.raty

PLN
%

kalkulator.kosztow

Podatek od czynności cywilno-prawnych

taksa.notarialna

wniosek.wkw

vat.od.prowizji

vat.od.taksy

prowizja.agencji

wpisy.aktu

razem

kalkulator.info

PLN
PLN
PLN
PLN
PLN
PLN
%
PLN

Agent Nieruchomości

Proszę wprowadzić poprawne imię i nazwisko
Proszę wprowadzić poprawny numer telefonu
Proszę wprowadzić poprawny adres e-mail
zaznacz.pole
rozwiaz.rownanie:
29 5
niepoprawny.wynik